Moradia T3 Em construção

297 000€

  • 3
  • 3
  • 2
  • Útil: 85m2
  • Bruta: 85m2
  • C.E.: A
  • Ano: 2025
  • Ref: 64709-MCGO62590

Localização

Santarém, Salvaterra de Magos, Muge, Centro

Descrição

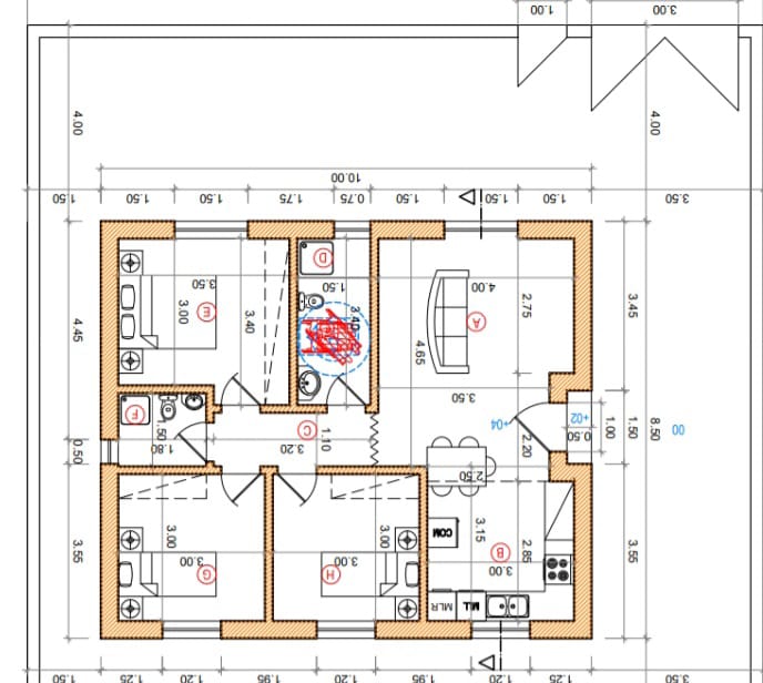
Moradia em inicio de construção, T3, cozinha equipada, em lote de 450m2, com 3 quartos e Kitchenette. Cozinha equipada. Ar Condicionado na sala e pré instalação nos quartos. XPS no piso do sótão(open space) para total conforto e isolamento, paredes exteriores revestidas a capoto, caixilharia em PVC com vidro duplo e estores térmicos. Portão automático,Tomada para viatura eléctrica.
Área descoberta 365m2, sendo 255 de quintal.
Tem prazo previsto para a conclusão da obra de 6/7 meses.
Fica junto à herdade do Cadaval, onde existe uma extensa e conceituada vinha, bem como actividade equestre.
A 50 min de Lisboa.
Em fase de colocação da laje superior, seguindo-se a cobertura e a alvenaria.

Atributos

  • Acesso a Mobilidade Reduzida
  • Aquecimento Central
  • Janelas vidro duplo
  • Terraço
  • Ar condicionado
  • Cozinha Equipada
  • Churrasqueira
  • Pré-instalação de Ar Condicionado
  • Porta de Segurança
  • Vista de Campo/Serra
  • Quintal/Horta
  • Água Canalizada
  • Isolamento Térmico
  • Isolamento Acústico
  • Boa Exposição Solar
  • Estores eléctricos
  • Portão exterior automático

Divisões

Plantas

Nome do piso: Térreo

Divisão Área Nota
Quarto
Quarto
Quarto
Kitchenette
WC
WC
Hall de Entrada
Hall de Quarto